Rezidence Ametyst B1
3.NP
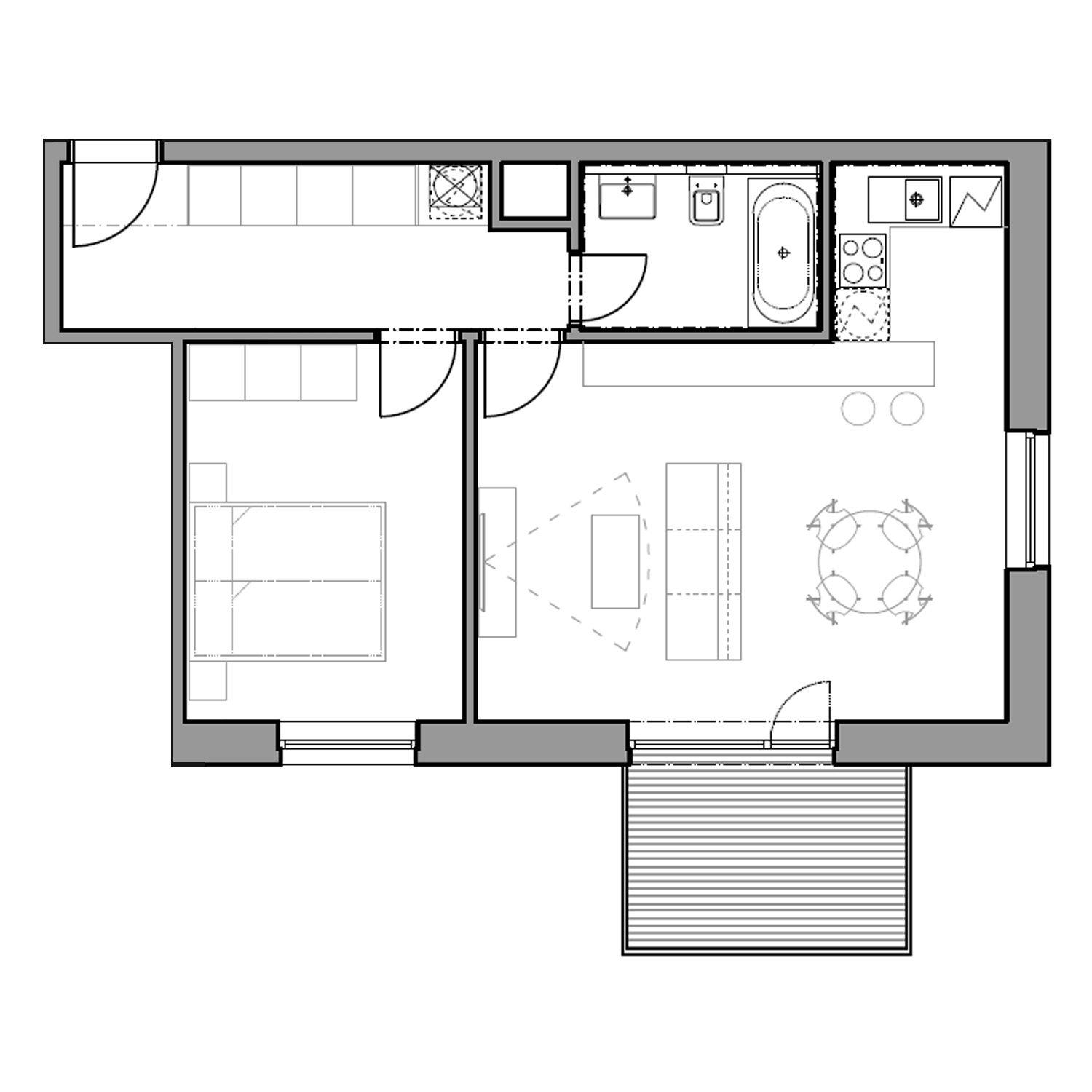
JednotkaB1.308
Dispozice2+kk
Užitná plocha ()52,6
Balkón/terasa ()6,0
Sklepano
Cena6 977 940 Kč
PDFCeník
Rezidence Ametyst B1 308