Rezidence Ametyst D2
2.NP
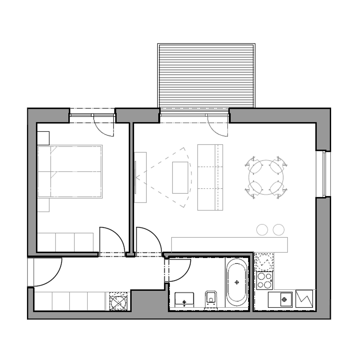
JednotkaD2.308
Dispozice2+kk
Užitná plocha ()50,0
Balkón/terasa ()6,0
Sklepano
Cena6 740 990 Kč
PDFCeník
Rezidence Ametyst D2 308