Rezidence Ametyst D2
1.NP
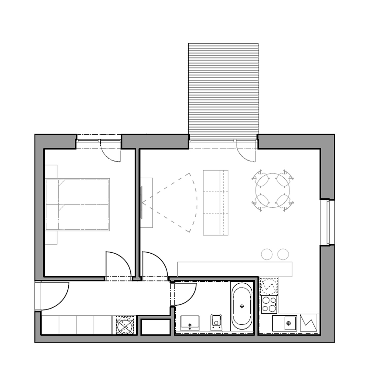
JednotkaD2.204
Dispozice2+kk
Užitná plocha ()50,0
Balkón/terasa ()6,6
Sklepano
Cena9 581 318 Kč
PDFCeník
Rezidence Ametyst D2 204