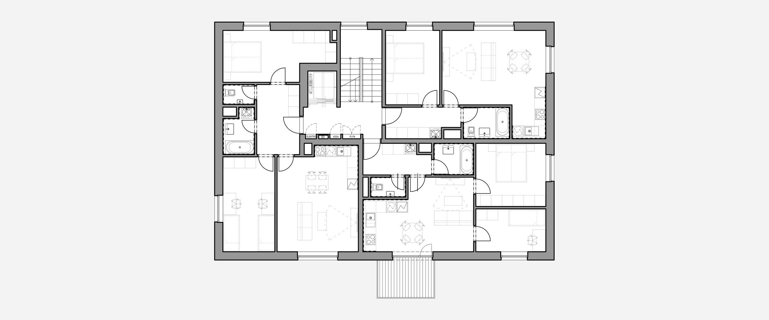
Rezidence Ametyst A3 2.NP
2.NP
3 ze 3 jednotek jsou volné
Pro kompletní zobrazení posuňte tabulku do stran 
jednotkadispozicepodlahová plocha ()balkón/terasa ()zahrádka ()sklep ()cenadostupnost
DetailA3.2033+kk74,9--3,29 310 067 Kč volné
DetailA3.2043+kk60,16,4-3,27 816 722 Kč volné
DetailA3.2052+kk52,9--3,26 396 712 Kč volné